Cabina Armadio Con Bagno - La Cabina Armadio Perfetta Hai Lo Spazio Giusto Very Vittoria

Cabina Armadio Con Bagno - La Cabina Armadio Perfetta Hai Lo Spazio Giusto Very Vittoria. Beh allora sarà una camera superlativa che verrà apprezzata da chiunque. Arredare una camera da letto con cabina armadio è già un'ottima cosa; E' vero, 6 mq non sono pochi per un bagno, ma l'idea sarebbe quella di avere un bagno decisamente più grande (mega doccia, armadio lavanderia, ecc.) ed un altro di servizio, senza nemmeno la doccia, solo con wc, bidet e lavandino. Si è pensato di disporre la vasca da bagno di fronte ai sanitari (collocati affiancati in prossimità della colonna di scarico). Salve,sto per acquistare una casa indipendente dove è stato realizzato un bagno (attiguo alla cucina tra l'altro) in una cabina armadio di 5mq.

Crea la cabina armadio dei tuoi sogni. Potrà essere una cabina armadio a vista cioè priva di porta o anche con normale anta a battente. Se le dimensioni della casa lo consentono, è possibile dedicare uno spazio ampio al complesso camera da letto con bagno e cabina armadi e progettare così un ambiente estremamente comodo e confortevole. Salve,sto per acquistare una casa indipendente dove è stato realizzato un bagno (attiguo alla cucina tra l'altro) in una cabina armadio di 5mq. Dicembre 23, 2020 alle 11:52 am.

Pin Su Abode
Pin Su Abode from i.pinimg.com
Progetto camera da letto con bagno e cabina armadio: Se le dimensioni della casa lo consentono, è possibile dedicare uno spazio ampio al complesso camera da letto con bagno e cabina armadi e progettare così un ambiente estremamente comodo e confortevole. Ma se si riesce ad aggiungere anche un bagno in camera? Il lotto sul quale insiste la casa è stato appena frazionato in due parti dai proprietari, con regolare dichiarazione catastale. In questa guida troverai progetti, idee e consigli per scegliere la migliore cabina armadio per una camera matrimoniale completa. Salve,sto per acquistare una casa indipendente dove è stato realizzato un bagno (attiguo alla cucina tra l'altro) in una cabina armadio di 5mq. Nessuna porta divide la camera dal bagno, e tra quest'ultimo e la cabina armadio c'è solo una porta scorrevole, che crea una barriera all'umidità ma non 'chiude'. La vasca può essere un modello con idromassaggio e box doccia integrato tipo quello nel.

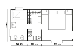
Nessuna porta divide la camera dal bagno, e tra quest'ultimo e la cabina armadio c'è solo una porta scorrevole, che crea una barriera all'umidità ma non 'chiude'.

Sono stati progettati come un tutt'uno: 15 cabine armadio (di cui 11 con i prezzi), chiuse o aperte, a vista o nascoste. Si è pensato di disporre la vasca da bagno di fronte ai sanitari (collocati affiancati in prossimità della colonna di scarico). Quello di uno spazio contenitivo dedicato a vestiti, accessori, scarpe e oggetti vari, che altrimenti sarebbe. Come realizzare una cabina armadio personalizzata divisa da muri in camera da letto. La cabina armadio può trovarsi sia dietro al letto, che di fianco, oppure in uno spazio dalla parte opposta rispetto al letto, che mantiene il suo ruolo centrale nell'ambiente, ma che che grazie alla camera armadio non è più l'unico fuoco della camera da letto, che acquisisce così maggiore ampiezza e un ulteriore spazio funzionale, pratico e di grande accessibilità. E' stata anche sanata una casupola da 24mq nel cortile, ho visto i documenti. Scegli dove sistemare ripiani e specchi, scarpiere e accessori per organizzare i vestiti. La vasca può essere un modello con idromassaggio e box doccia integrato tipo quello nel. Potrà essere una cabina armadio a vista cioè priva di porta o anche con normale anta a battente. Significa avere lo spazio adeguato per potersela permettere. Le cabine armadio sono soluzioni d'arredo sempre più diffuse. Scopri subito migliaia di annunci di privati e aziende e trova quello che cerchi su subito.it

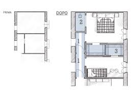
Sviluppo di 5 differenti schemi dispositivi. Camere con cabina armadio e bagno: La vasca può essere un modello con idromassaggio e box doccia integrato tipo quello nel. Camera da letto, bagno e cabina armadio sfilano in sequenza, uno dopo l'altro. 15 cabine armadio (di cui 11 con i prezzi), chiuse o aperte, a vista o nascoste.

Progetto Camera Matrimoniale 219 Gruppo 5 Arredamento Hotel Contract Casa
Progetto Camera Matrimoniale 219 Gruppo 5 Arredamento Hotel Contract Casa from www.gruppo5.it
Scopri su eprice la sezione armadio per bagno e acquista online. Mi chiedo il perché i. In questa guida troverai progetti, idee e consigli per scegliere la migliore cabina armadio per una camera matrimoniale completa. Arredare una camera da letto con cabina armadio è già un'ottima cosa; La cabina armadio in camera da letto è il sogno di ogni donna. Scopri subito migliaia di annunci di privati e aziende e trova quello che cerchi su subito.it Le soluzioni a vista però sono nate proprio per creare cabine armadio che riescano a dare la sensazione di una boutique di lusso e che diano la possibilità di rendere immediatamente visibile il vestito giusto al primo. Il bagno della camera matrimoniale.

Non mi sembrano 14 mq, quelli che restano oltre bagno e cabina armadio.

Quello di uno spazio contenitivo dedicato a vestiti, accessori, scarpe e oggetti vari, che altrimenti sarebbe. Consegna rapida e ritiro al pick&pay. Sviluppo di 5 differenti schemi dispositivi. 15 cabine armadio (di cui 11 con i prezzi), chiuse o aperte, a vista o nascoste. Le dimensioni di ogni lato della stanza. Camera da letto con cabina armadio: Una cabina armadio standard ha infatti una profondità media di 120 cm, contro i 60 di un normale armadio. Potresti già con 18 mq riuscire a creare tutto, con bagno separato e cabina armadio di qualche mq. Nel progettare casa, l'ideale è una valutazione globale dell'immobile, destinando le adeguate volumetrie a zona giorno e zona notte con relativi armadi e cabine armadio, così da creare una proporzionata divisione degli spazi, che risulti funzionale e mirata alle specifiche esigenze del caso. Guardaroba e bagno dietro la testiera. La cabina armadio all'interno della camera da letto può essere installata solamente se lo spazio è adeguato. In questo libro delle idee abbiamo visto come cabine armadio piccole e ripostigli per stanze piccole, cioè degli ambienti dedicati all'ordine e all'organizzazione della casa.sì, perché anche una camera da letto piccola con cabina armadio ha un grande valore aggiunto per la casa: Il bagno in camera presenta una porta scorrevole a scomparsa nel muro:

La cabina armadio è ricavata dal vecchio ripostiglio e da parte del corridoio: Scopri subito migliaia di annunci di privati e aziende e trova quello che cerchi su subito.it Nessuna porta divide la camera dal bagno, e tra quest'ultimo e la cabina armadio c'è solo una porta scorrevole, che crea una barriera all'umidità ma non 'chiude'. Le dimensioni della cabina armadio consentono di arredarla su tre lati, sfruttando lo spazio sotto la finestra con delle cassettiere. Gli armadi con ante sono perfetti per chi preferisce un maggiore ordine all'interno della propria cabina armadio e non necessitano di una visione immediata dei propri abiti.

Progetto Camera Matrimoniale 219 Gruppo 5 Arredamento Hotel Contract Casa
Progetto Camera Matrimoniale 219 Gruppo 5 Arredamento Hotel Contract Casa from www.gruppo5.it
Come realizzare una cabina armadio personalizzata divisa da muri in camera da letto. In questa guida troverai progetti, idee e consigli per scegliere la migliore cabina armadio per una camera matrimoniale completa. Progetto camera da letto con bagno e cabina armadio: Beh allora sarà una camera superlativa che verrà apprezzata da chiunque. Il bagno in camera presenta una porta scorrevole a scomparsa nel muro: Camere con cabina armadio e bagno: Potresti già con 18 mq riuscire a creare tutto, con bagno separato e cabina armadio di qualche mq. Le dimensioni della cabina armadio consentono di arredarla su tre lati, sfruttando lo spazio sotto la finestra con delle cassettiere.

Tuttavia, se anzichè fare la parete in muratura con la porta, prevedessi una parete in vetro (a chiusura della cabina), allora la superficie della stessa sarebbe da aggiungere all'effettiva camera da letto e eviteresti il problema igienico sanitario.

Se le dimensioni della casa lo consentono, è possibile dedicare uno spazio ampio al complesso camera da letto con bagno e cabina armadi e progettare così un ambiente estremamente comodo e confortevole. Le dimensioni della cabina armadio consentono di arredarla su tre lati, sfruttando lo spazio sotto la finestra con delle cassettiere. Occorre prima di procedere alla scelta, analizzare. Significa avere lo spazio adeguato per potersela permettere. Guardaroba e bagno dietro la testiera. Definite le dimensioni minime e i vincoli normativi, le tipologie che possiamo sviluppare per il progetto di una camera da letto con bagno e cabina armadio, sono molteplici. Sono stati progettati come un tutt'uno: Camere con cabina armadio e bagno: La cabina armadio è ricavata dal vecchio ripostiglio e da parte del corridoio: Infatti una zona guardaroba interna deve essere profonda almeno 120cm e. La cabina armadio in camera da letto è il sogno di ogni donna. Le dimensioni di ogni lato della stanza. Visualizza altre idee su cabina armadio, idee armadio camera da letto, camera da letto con cabina armadio.